




| Bauherr: | privater Bauherr |
| Bauort: | Dresden-Neustadt |
| Baubeginn: | März 1998 - März 1999 |
| Baukosten: | 1,5 Mio DM |
| Nutzfläche: | 1040 m² |
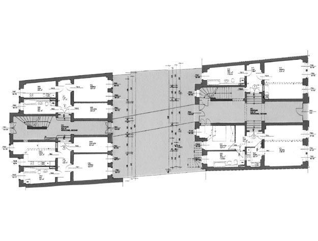
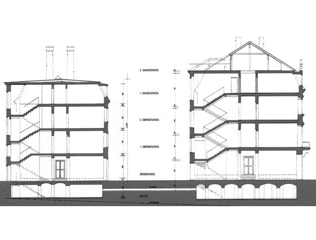
Bei diesem Bauvorhaben handelt es sich um die Sanierung und Modernisierung einer gründerzeitlichen Wohnbausubstanz im Sanierungsgebiet Dresden-Neustadt unter denkmalpflegerischen Gesichtspunkten. Das Objekt besteht aus Vorder- und Hinterhaus mit insgesamt 16 WE, außerdem wurde das Dachgeschoß mit einer weiteren Wohnung ausgebaut. Folgende Aspekte waren bei der Planung und Ausführung zu berücksichtigen:
Für sämtliche Wohnungen wurden bedarfsgerechte und preiswerte Grundrisslösungen entwickelt. Der Ausbau basiert auf einem einfachen, aber soliden Standard.